-
185 m²
-
214 kWh/m²
Individuele handelszaak te koop in Buggenhout
Energiezuinige handelsruimte mét 3 privé auto parkeer-plaatsen.
VIDEO: facebook.com
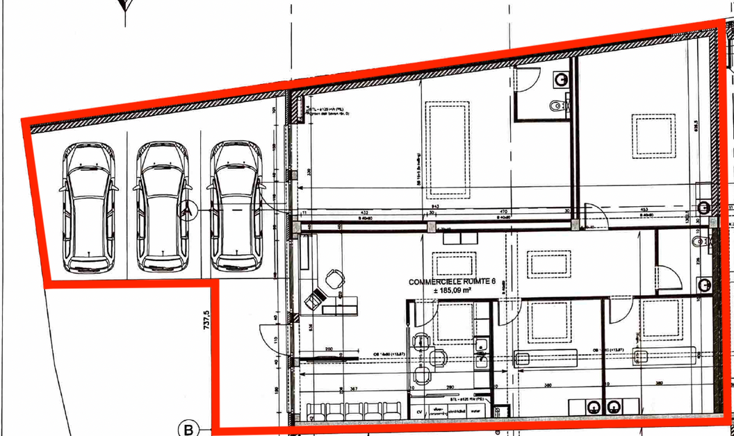
In Buggenhout, bieden we U deze energiezuinige handelszaak/commerciële ruimte met onthaal, wachtplaats, keuken, 4 tot 5 consultatie/kantoor/cabinet/polyvalente/behandel-ruimtes, douche, en een afzonderlijk toilet aan. De totale bruikbare vloeroppervlakte bedraagt 185 m²!
Het omvat een mooie gelijkvloerse multifunctionele ruimte. Momenteel is het pand in gebruik als kine-praktijk.
Het pand is moduleerbaar, direct instap-klaar en voorzien van alle hedendaagse technieken. Vloerverwarming op aardgas en individuele airco doorheen het pand beschikbaar. Elektriciteit CONFORM. Verder is de praktijk goed bereikbaar met zowel het eigen als het openbaar vervoer. Stapvoets gelegen in het centrum bij het NMBS station (200 meter) en bushalt(es) van Buggenhout. Daarenboven rolstoel toegankelijk. Ook zijn er 3 privatieve privé auto-parkeerplaatsen bij het pand inbegrepen.
Verder info te bekomen per afspraak. Attesten beschikbaar op www.arthur.be.
Wenst u meer info, een bezoek op afspraak of een GRATIS SCHATTING? Contacteer DIETER van Immo Arthur Segers via info@arthur.be of 052/46.00.00.
Dieter De Vos
financieel
- Prijs
- € 430.000
- Beschikbaarheid
- Vanaf akte
- Kadastraal inkomen
- € 1.457
ligging
- Ligging
- Centraal
- Omgeving school
- Ja
- Omgeving winkels
- Ja
- Omgeving sportcentrum
- Ja
comfort
- Rolstoeltoegankelijk
- Ja
- Lift
- Nee
- Air conditioning
- Ja
- Zwembad
- Nee
gebouw
- Bewoonbare oppervlakte
- 185 m²
- Type bebouwing
- Halfopen
- Bouwjaar
- 2012
- Type dak
- Platdak
terrein
- Tuin
- Nee
energie
- EPC
- 214 kWh/m²
- EPC unieke code
- 3274098
- EPC klasse
- B
- Dubbel glas
- Ja
- Elektriciteitskeuring
- Ja, conform, 03 augustus 2012
- Verwarming
- Vloerverwarming
- Type verwarming
- Individueel
technieken
- Elektriciteit
- Ja
garage
- Garage
- Nee
indeling
- Terras
- Nee
downloads
stedenbouwkundige informatie
- Bestemming
- Woongebied
- Bouwvergunning
- Ja
- Verkavelingsvergunning
- Nee
- Voorkooprecht
- Nee
- Vonnissen
- Nee
- G-score
- D
- P-score
- D
- Bodemattest
- Ja
Wenst u meer informatie over deze eigendom of een afspraak voor bezichtiging?
Energiezuinige handelsruimte + 3 privé auto-parkeer-plaatsen
Spoorwegstraat 1E, 9255 Buggenhout
€ 430.000
- 185 m²